CNC DRILL 1200 H2CD + RETOUR

Ref:
115058-0
INFORMATIONS REQUISES

Consentement

CNC DRILL 1200 H2CD + RETOUR

Information complémentaire

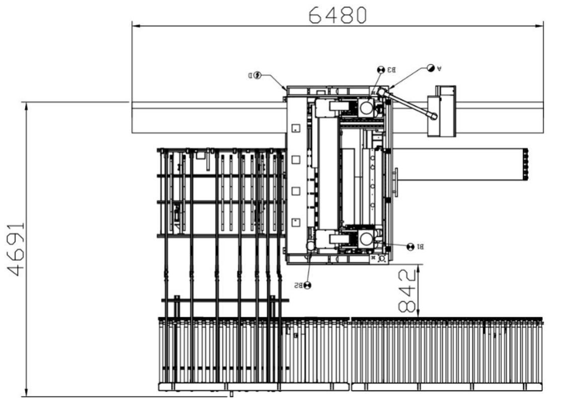
Axes contrôlés :@8|Longueur maximale de la pièce :@2800mm|Longueur minimale de la pièce :@200mm|Longueur maximale de la pièce :@2800mm|Longueur minimale de la pièce :@200mm|Largeur maximale de travail :@1200mm|Largeur minimale de la pièce :@50mm|Epaisseur maximale de la pièce :@48mm|Epaisseur minimale de la pièce :@12mm|Vitesse maximale de l’axe X :@85m/min|Vitesse maximale de l’axe Y :@60m/min|Hauteur de la table de travail :@850mm|COMPOSITION DE LA BROCHE SUPÉRIEURE@|Tête de perçage :@2 têtes indépendantes|- Forets verticaux :@12 unités (6X+7Y)|- Forets horizontaux :@8 unités (2*2X+2*Y)|Moteur de fraisage vertical :@3,5kW|COMPOSITION DE LA TÊTE INFÉRIEURE@|Tête de forage :@1 tête|- Forets verticaux :@9 unités|Moteur de fraisage vertical :@3,5kW|Vitesse du moteur de fraisage :@1800RPM|Puissance totale installée :@17kW|Tension :@380V 3PH|Poids :@3900Kg|Dimensions :@compris|RETOUR DES PIÈCES@Compris